Schönes Reihenmittelhaus mit Terrasse, kleinem Garten und Stellplatz in 79211 Denzlingen
Eine moderne Wohnatmosphäre, ein durchdachtes Raumkonzept und die hervorragende Lage prägen dieses charmante Reihenmittelhaus im begehrten Denzlinger Wohngebiet „Im Heidach III“.
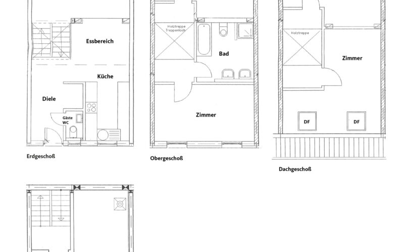
Mit einer Wohnfläche von ca. 135 m² und einer zusätzlichen Nutzfläche von rund 26 m² bietet das Haus auf insgesamt sieben versetzten Ebenen ein außergewöhnliches Wohngefühl. Die einzelnen Ebenen sind durch kurze Treppen verbunden und schaffen so eine offene, dennoch klar gegliederte Raumstruktur.
Das Haus verfügt über vier vielseitig nutzbare Zimmer, die sich ideal als Schlafzimmer, Kinderzimmer, Büro oder Gästezimmer eignen. Eine helle Küche mit Essbereich bildet den Mittelpunkt des Familienlebens, während das großzügige Wohnzimmer mit seinem gemütlichen Ambiente zum Entspannen einlädt.
Ein modernes Badezimmer, eine Diele mit Gäste-WC sowie ein Kellerraum bieten zusätzlichen Komfort und Stauraum.
Der Außenbereich überzeugt mit einer sonnigen Terrasse, die den Wohnraum harmonisch ins Freie erweitert. Hier können Sie in ruhiger Umgebung die warmen Tage genießen oder gemütliche Abende im kleinen, liebevoll angelegten Garten verbringen.
Ein PKW-Stellplatz direkt vor dem Haus rundet dieses attraktive Angebot ab.
Die Immobilie befindet sich in einem sehr gepflegten Zustand und überzeugt durch ihre moderne, dennoch behagliche Wohnatmosphäre. Die durchdachte Raumaufteilung, das freundliche Wohnumfeld und die naturnahe Lage machen dieses Haus zu einem idealen Zuhause für Familien oder Paare, die Wert auf Lebensqualität und Wohnkomfort legen.
Verwirklichen Sie in diesem charmanten Reihenmittelhaus Ihren Traum vom eigenen Zuhause – mit viel Platz, einem hohen Wohlfühlfaktor und einer Lage, die keine Wünsche offenlässt.
Denzlingen ist eine attraktive Gemeinde im Landkreis Emmendingen, etwa zehn Kilometer nördlich von Freiburg im Breisgau gelegen. Mit rund 14.000 Einwohnern vereint der Ort eine naturnahe Wohnlage mit einer sehr guten Infrastruktur und einer hervorragenden Verkehrsanbindung. Eingebettet zwischen Schwarzwald und Rheinebene bietet Denzlingen zahlreiche Möglichkeiten zur Freizeitgestaltung in der Natur, gleichzeitig sind die vielfältigen kulturellen und beruflichen Angebote der Stadt Freiburg schnell erreichbar. Über die Bundesstraße B3 sowie die nahegelegene Autobahn A5 ist die Gemeinde optimal an das überregionale Straßennetz angebunden. Der Bahnhof Denzlingen bietet regelmäßige Zugverbindungen nach Freiburg, Emmendingen und Offenburg. Einkaufsmöglichkeiten für den täglichen Bedarf, Schulen, Kindergärten, Ärzte und Freizeiteinrichtungen befinden sich direkt im Ort und sorgen für eine hohe Lebensqualität.
Das Objekt liegt in einer ruhigen, gewachsenen Wohngegend im östlichen Teil von Denzlingen. Die Umgebung ist geprägt von gepflegten Ein- und kleinen Mehrfamilienhäusern sowie Reihenhäusern mit viel Grün und einer angenehmen Nachbarschaft. In wenigen Gehminuten sind Schulen, Kindergärten, Sportplätze und Bushaltestellen erreichbar, ebenso wie Einkaufsmöglichkeiten und die Ortsmitte. Spazier- und Radwege entlang der Elz oder am Mauracher Berg bieten Erholung direkt vor der Haustür. Die Lage „Im Heidach 3“ verbindet somit ruhiges, familienfreundliches Wohnen mit einer idealen Anbindung an das Zentrum von Denzlingen und die nahe Stadt Freiburg.
Fußböden:
Fliesen, Laminat, Teppichböden
Wände:
Putz und Tapeten, gestrichen
Fenster und Terrassentüren:
2-fach isolierverglast
weiße Kunststoffrahmen
außenlaufende Rolläden, manuell
Türen:
Holztüren in Holzzargen, braun
Küche:
Fliesenboden
Fliesenspiegel im Arbeitsbereich
Sanitär:
Fußboden und Wände: gefliest
Wanne, Dusche, Doppel-Waschplatz, WC,
elektrische Lüftung
Gäste-WC
Heizung und Warmwasser:
Zentralheizung Gas
Heizkörper mit Thermostatventilen
Solarmodule für Warmwasser
Terrasse:
Steinfliesen
Garten:
Sichtschutz durch Hecken + Holzzäune
PKW-Stellplatz:
vor dem Haus
Extra:
Regenwasser-Zisterne für WC-Spülung
| Objekt ID: | TI-696-25 |
| Kaufpreis: | 659.000,00 EUR |
| Provision für Käufer: | 3,57 inkl. MwSt. |
| Lage: | Denzlingen (Gemeinde) |
| Zimmer: | 5 |
| Schlafzimmer: | 4 |
| Badezimmer: | 1 |
| Wohnfläche: | 135,43 m² |
| Grundstücksfläche: | 216,00 m² |
| Grundfläche: | 25,67 m² |
| Etagen: | 3 |
| Baujahr: | 2001 |
| Objektzustand: | gepflegt |
| Anzahl Außenstellplätze: | 1 |
| Stellplätze: | 1 |
| Separate WCs: | 1 |
| Terrassen: | 1 |
| Energieausweis-Jahrgang: | ab Mai 2014 |
| Energieausweis-Gebäudeart: | Wohngebäude |
| Heizungsart: | Zentralheizung |
| Befeuerungsart: | Gas |
| Baujahr lt. Energieausweis: | 2001 |
| Energieeffizienzklasse: | B |
| Wert des Endenergieverbrauchs: | 63,00 kWh/(m²*a) |
| Art des Energieausweises: | Verbrauch |
| Gültigkeit des Energieausweises: | 13.12.2028 |



























































