Wohnen in ruhiger Lage – Großzügige 3-Zi-ETW mit 2 Balkonen und TG-Stellplatz in 79211 Denzlingen
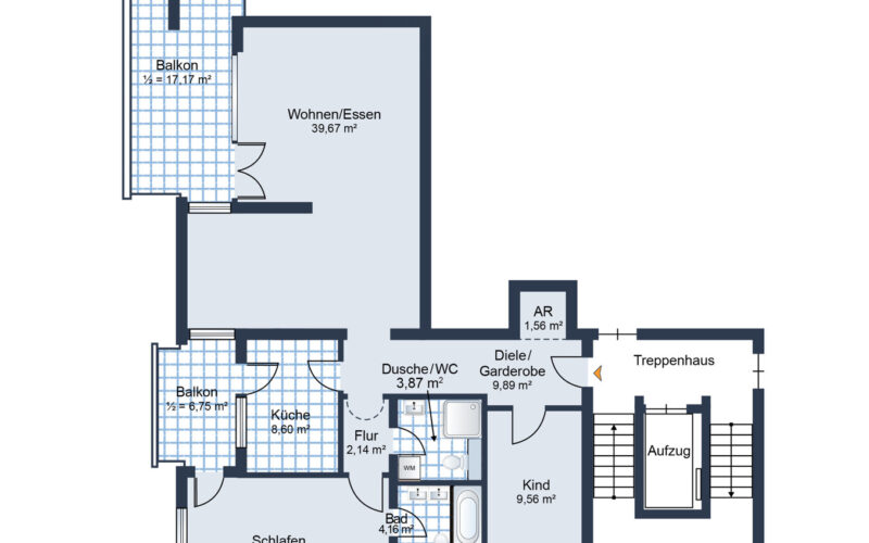
Die angenehm geschnittene 3,5-Zimmer-Wohnung befindet sich im 1. Obergeschoss eines gepflegten Mehrfamilienhauses mit insgesamt 18 Wohneinheiten in einem ruhigen, gewachsenen Wohngebiet von Denzlingen. Mit einer Wohnfläche von ca. 106 m² überzeugt sie durch eine großzügige und harmonische Raumaufteilung sowie eine helle, freundliche Wohnatmosphäre.
Das Raumangebot verteilt sich auf eine einladende Diele mit praktischem Abstellraum, ein geräumiges Wohnzimmer mit großem Essbereich, eine separate Küche, zwei weitere Zimmer, einen Flur sowie zwei Bäder. Das erste Badezimmer ist mit Dusche, Waschbecken, WC sowie einem Waschmaschinenanschluss ausgestattet. Das zweite Bad verfügt über eine Badewanne, Waschbecken und WC und bietet zudem angenehmes Tageslicht.
Besonders hervorzuheben sind die beiden vollständig überdachten Balkone, die den Wohnraum großzügig ins Freie erweitern und zu entspannten Stunden im Außenbereich einladen. Die Ausrichtung nach Süden sorgt für viel Licht und macht die Räume freundlich und hell.
Zur Wohnung gehören ein abgeschlossener Kellerraum sowie ein Tiefgaragenstellplatz. Darüber hinaus stehen den Bewohnern ein gemeinschaftlicher Wasch- und Trockenraum sowie mehrere Fahrradabstellräume im Untergeschoss zur Verfügung. Das 1. Obergeschoss ist sowohl über das gepflegte Treppenhaus als auch bequem mit dem Personenaufzug erreichbar.
Die Wohnung präsentiert sich in einem ordentlichen, dem Baujahr entsprechenden Zustand.
Die durchdachte Aufteilung und die großzügigen Raumverhältnisse verleihen ihr eine besonders attraktive Wohnqualität. Mit gezielten Sanierungs- und Modernisierungsmaßnahmen lässt sich hier ein individuelles Wohnkonzept nach eigenen Vorstellungen verwirklichen. Ob zur Eigennutzung oder als Kapitalanlage durch Vermietung – diese Immobilie bietet vielseitige Möglichkeiten und stellt eine attraktive Investition in gefragter Wohnlage dar.
Denzlingen liegt rund 10 km nördlich von Freiburg im Breisgau im Landkreis Emmendingen. Die Gemeinde hat einen alten, sehr schönen dörflichen Ortskern und verfügt über eine sehr gute Infrastruktur mit Schulen, Kindergärten, Sportanlagen, Ärzten, Apotheken und Geschäften des täglichen Bedarfs. Sie erreichen Freiburg mit dem Auto oder öffentlichen Verkehrsmitteln in kürzester Zeit. Ebenso kommen Sie schnell ins benachbarte Frankreich oder die Schweiz. Der Ort liegt inmitten der schönen südbadischen Weinbauregion mit malerischen Winzerdörfern, dem Kaiserstuhl, dem Markgräflerland und dem gesamten Erholungsgebiet des Schwarzwalds. Denzlingen hat derzeit ca. 15.600 Einwohner.
Das Objekt liegt in einem ruhigen und gewachsenen Wohngebiet, Kindergärten, Schulen, Sportanlagen und Schwimmbad sind nur ca. 5 bis 10 Gehminuten entfernt. Das Ortszentrum mit Geschäften des täglichen Bedarfs, Ärzte, Apotheke und Bahnhof erreicht man fußläufig in ca. 25 Minuten.
Fußböden:
Vinyl, Fliesen
Wände und Decken:
Putz und Tapeten, gestrichen
Fenster und Terrassentüren:
2-fach isolierverglast
Holzrahmen braun
teilweise außenlaufende Rolläden, manuell
Türen:
Holztüren braun in Metallzargen grün
Sanitär:
Fußböden und Wände: gefliest
Wanne / Dusche, Waschplatz, WC
Waschmaschinenanschluss
Heizung und Warmwasser:
Zentralheizung Gas
Heizkörper mit Thermostatventilen
Interessiert? Dann vereinbaren Sie am besten noch heute einen Besichtigungstermin mit uns, dem Team Tetik Immobilien! Wir freuen uns über Ihr Interesse an diesem Objekt. Sehr gerne zeigen wir Ihnen die Eigentumswohnung und beraten Sie in allen Fragen rund um den Erwerb. Wir kümmern uns auch um den Verkauf oder die Vermietung Ihrer bisher genutzten Immobilie.
Alle Angaben zum Objekt erfolgen nach Mitteilung unseres Auftragsgebers. Für die Richtigkeit und Vollständigkeit der Angaben, insbesondere der Flächen und Maße, wird keine Haftung übernommen. Bei Weitergabe an Dritte entsteht Provisionspflicht. Die Käuferprovision beträgt 3,57 % inkl. 19 % MwSt.
| Objekt ID: | TI-718-25 |
| Verfügbar ab: | sofort |
| Kaufpreis: | 389.000,00 EUR |
| Hauskosten: | 503,00 EUR |
| Provision für Käufer: | 3,57 % |
| Zimmer: | 3 |
| Schlafzimmer: | 2 |
| Badezimmer: | 2 |
| Wohnfläche: | 105,98 m² |
| Baujahr: | 1977 |
| Objektzustand: | gepflegt |
| Ausstattungskategorie: | Standard |
| Anzahl TG-Stellplätze: | 1 |
| Stellplätze: | 1 |
| Balkone: | 2 |
| Energieausweis-Jahrgang: | ab Mai 2014 |
| Energieausweis-Gebäudeart: | Wohngebäude |
| Heizungsart: | Zentralheizung |
| Befeuerungsart: | Gas |
| Baujahr lt. Energieausweis: | 1977 |
| Energieeffizienzklasse: | D |
| Wert des Endenergieverbrauchs: | 108,00 kWh/(m²*a) |
| Art des Energieausweises: | Verbrauch |
| Gültigkeit des Energieausweises: | 17.11.2028 |


























































