MFH mit Gewerbeeinheit
Dieses außergewöhnliche Wohn- und Geschäftshaus in zentraler Lage von Feldberg Altglashütten vereint Geschichte, Substanz und Entwicklungspotenzial auf beeindruckende Weise. Auf einem großzügigen Grundstück von ca. 1.883 m² treffen ein historischer Altbau, ein moderner Neubau sowie eine flexibel nutzbare Gewerbeeinheit aufeinander und eröffnen vielfältige Nutzungsmöglichkeiten – vom klassischen Mehrgenerationenwohnen über die Kombination aus Wohnen und Arbeiten bis hin zur nachhaltigen Kapitalanlage mit Entwicklungsperspektive.
Nutzungskonzept & Vermietungsstatus:
Der moderne Neubau beherbergt drei Wohneinheiten, die aktuell vollständig und langfristig vermietet sind. Diese Einheiten bilden das stabile Fundament des Gesamtobjekts und sorgen bereits heute für eine verlässliche Grundrendite. Ergänzt wird das Ensemble durch den charmanten Altbau, dessen Räume derzeit freistehen und sich ideal für Eigennutzer, kreative Konzepte oder zusätzliche Vermietung eignen. Auch die im Erdgeschoss gelegene Gewerbeeinheit ist seit Dezember unvermietet und bietet somit sofortige Gestaltungsfreiheit – sei es für Büro, Praxis, Ladenfläche oder eine wohnähnliche Umnutzung im Rahmen der Möglichkeiten.
Flächenangebot & räumliche Struktur:
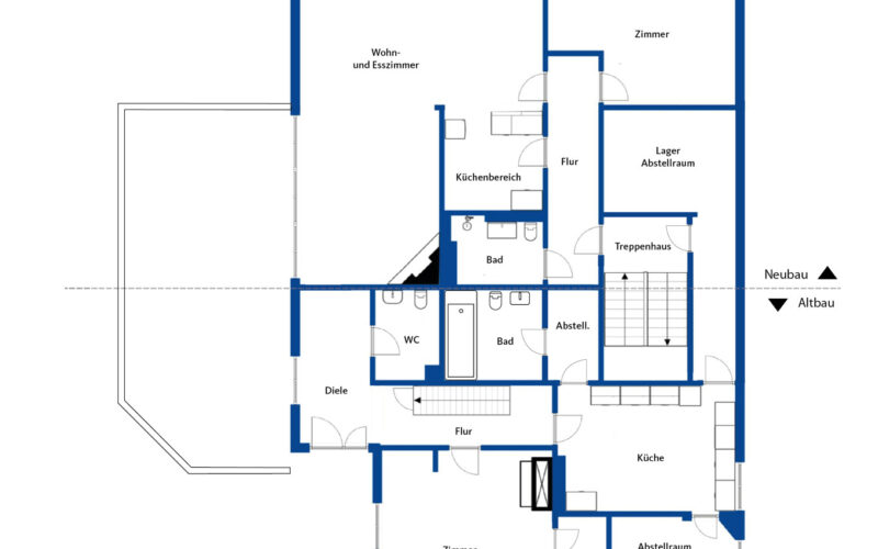
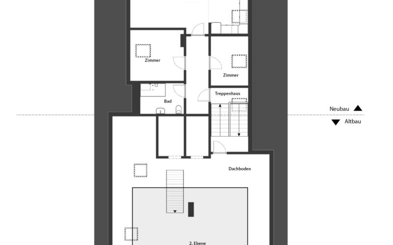
Insgesamt verfügt das Gebäude über ca. 365 m² Wohnfläche, ergänzt durch ca. 91 m² Gewerbefläche sowie zusätzliche Nutzflächen. Die Raumaufteilung über drei Etagen ermöglicht eine klare Trennung unterschiedlicher Nutzungen oder ein harmonisches Miteinander – ganz nach individuellem Bedarf. Die offene Grundstücksstruktur mit mehreren Stellplätzen unterstreicht den praktischen Charakter des Anwesens und schafft Komfort für Bewohner, Mieter und Besucher gleichermaßen.
Innerhalb des Gebäudeensembles wurde in der Vergangenheit eine einzelne Wohneinheit separat veräußert. Mit dem Eigentümer dieser Einheit wurden Gespräche geführt; ein zusätzlicher Erwerb ist möglich. Damit besteht die Möglichkeit, das Objekt wieder vollständig in einer Hand zu vereinen.
Feldberg-Altglashütten liegt im südlichen Schwarzwald auf rund 1.000 Metern Höhe und gehört zur Gemeinde Feldberg, der höchstgelegenen Ortschaft Deutschlands. Der Ortsteil befindet sich in einem ruhigen Hochtal, umgeben von dichten Wäldern, sanften Bergkuppen und der typischen Schwarzwaldlandschaft.
Die Lage bietet eine ideale Kombination aus naturnaher Idylle und guter Erreichbarkeit: Über die B31 ist Freiburg mit dem Auto in ca. 45 Minuten erreichbar, der Bahnhof Altglashütten-Falkau sorgt für eine komfortable Anbindung an den öffentlichen Nahverkehr.
Der kleine, gewachsene Ort zeichnet sich durch sein traditionelles Schwarzwaldbild aus und bietet eine angenehme, überschaubare Infrastruktur mit Gastronomie- und Tourismusangeboten, Nahversorgern und kleinen Dienstleistungsbetrieben. Zahlreiche Freizeitmöglichkeiten befinden sich unmittelbar vor der Haustür – vom Wandern, Mountainbiken und Spazierengehen im Sommer bis hin zu Ski- und Langlaufangeboten in der kalten Jahreszeit.
Die Nähe zu Feldberg, Schluchsee und Titisee macht Altglashütten zu einem besonders attraktiven Wohn- und Erholungsstandort für Naturliebhaber und Ruhesuchende.
Durch die Höhenlage, die klare Luft und das harmonische Ortsbild bietet Altglashütten eine außergewöhnliche Wohnqualität. Der Ort verbindet ländliche Ruhe mit bestem Zugang zu Freizeit- und Ausflugsmöglichkeiten im gesamten Hochschwarzwald – ideal für alle, die ein entspanntes Lebensumfeld inmitten einer der schönsten Naturlandschaften Deutschlands suchen.
Das Objekt befindet sich in der Kirchgasse 3. Von hier aus sind Ortskern, Dorfplatz sowie alltägliche Einrichtungen bequem zu Fuß erreichbar. Auch der Bahnhof liegt in praktischer Nähe und ermöglicht eine unkomplizierte Anbindung an den regionalen Nahverkehr.
Gleichzeitig befindet sich die Adresse nur wenige Schritte von weitläufigen Wiesen, Wanderwegen und Waldrändern entfernt – perfekt für alle, die naturnah wohnen möchten, ohne auf gute Erreichbarkeit zu verzichten.
Wohn- und Nutzungskonzept
– Wohn- und Geschäftshaus mit mehreren Wohneinheiten
– Neubau mit 3 Wohneinheiten, aktuell vollständig und fest vermietet
– Altbau derzeit frei nutzbar
– Gewerbeeinheit im Erdgeschoss, aktuell leerstehend
– Nutzung geeignet für Wohnen, Gewerbe oder Kombination aus Eigennutzung und Vermietung
– Aufteilung über 3 Etagen
Fenster
– Holzfenster im Altbaubereich
– Kunststofffenster im Neubau
– Unterschiedliche Baualtersklassen je nach Gebäudeteil
Heizung & Warmwasser
– Zentrale Ölheizung, Baujahr 1978
– Kachelofen
– Nachtspeicheröfen (strombetrieben) ergänzend vorhanden
– Zentrale Warmwasserversorgung
Elektrik
– Neubau: moderne Elektroinstallation
– Altbau: ältere Elektrik, modernisierungs- fähig
Keller- und Nebenflächen
– Kellerflächen vorhanden
– Klassische Bestandsausführung
– Zusätzliche Nutz- und Abstellmöglichkeiten
Außenbereich & Parken
– Offene Stellplätze auf dem Grundstück
– Mehrere Stellmöglichkeiten für Bewohner, Mieter und Gewerbe
– Großzügiges Grundstück mit Entwicklungs- und Gestaltungsspielraum
Sanierungen
– 2020: 2 Neue Fenster DG-Wohnung
– 2025: Komplette Sanierung EG-Wohnung (3 Fach Verglasung, Elektrik, Boden, Bad)
– 2025: Neue Balkontür und neues Fenster DG-Wohnung
Interessiert? Dann vereinbaren Sie am besten noch heute einen Besichtigungstermin mit uns, dem Team Tetik Immobilien! Wir freuen uns über Ihr Interesse an diesem Objekt. Sehr gerne zeigen wir Ihnen das Mehrfamilienhaus mit Gewerbeeinheit und beraten Sie in allen Fragen rund um den Erwerb. Wir kümmern uns auch um den Verkauf oder die Vermietung Ihrer bisher genutzten Immobilie.
Alle Angaben zum Objekt erfolgen nach Mitteilung unseres Auftragsgebers. Für die Richtigkeit und Vollständigkeit der Angaben, insbesondere der Flächen und Maße, wird keine Haftung übernommen. Bei Weitergabe an Dritte entsteht Provisionspflicht. Die Käuferprovision beträgt 3,57 % inkl. 19 % MwSt.
| Objekt ID: | TI-710-25 |
| Kaufpreis: | 795.000,00 EUR |
| Provision für Käufer: | 3,57 € |
| Zimmer: | 18 |
| Wohnfläche: | 365,00 m² |
| Grundstücksfläche: | 1.883,00 m² |
| Grundfläche: | 165,00 m² |
| Etagen: | 4 |
| Baujahr: | 1978 |
| Bürofläche: | 91 m² |
| Balkone: | 2 |
| Terrassen: | 1 |
| Heizungsart: | Ofenheizung, Etagenheizung |
| Befeuerungsart: | Öl |

































































































































































