Wohnen in zentaler Lage Bezaubernde 3-Zimmer-ETW mit Balkon und TG-Stellpaltz 79211 Denzlingen
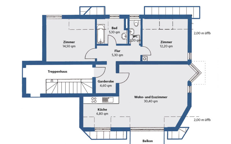
Die angenehm geschnittene 3-Zimmer-Wohnung befindet sich im 2. Obergeschoss eines gepflegten Mehrfamilienhauses mit insgesamt zehn Wohneinheiten in einem zentralen Wohngebiet von Denzlingen. Mit einer Wohnfläche von ca. 84 m² überzeugt sie durch eine großzügige und harmonische Raumaufteilung sowie eine helle und freundliche Wohnatmosphäre.
Das Raumangebot verteilt sich auf eine kleine Diele mit anschließendem Flur, ein geräumiges Wohnzimmer mit Essbereich, eine offen gestaltete Küche, zwei individuell nutzbare Zimmer, ein Bad sowie ein separates WC. Besonders hervorzuheben ist der nach Süden ausgerichtete Balkon, der den Wohnraum optimal ins Freie erweitert und zu entspannten Stunden im Außenbereich einlädt.
Im Wohnzimmer besteht ein Kaminanschluss, der bei Bedarf aktiviert werden kann und die Möglichkeit bietet, eine besonders behagliche Wohnatmosphäre zu schaffen.
Zur Wohnung gehören ein abgeschlossener Kellerraum sowie ein Tiefgaragenstellplatz. Darüber hinaus stehen den Bewohnern ein gemeinschaftlicher Wasch- und Trockenraum sowie ein Fahrradabstellraum im Untergeschoss zur Verfügung. Das 2. Obergeschoss wird über das gepflegte Treppenhaus erreicht.
Die Wohnung präsentiert sich in einem sehr gepflegten Zustand. Die durchdachte Aufteilung und die zentrale Lage in Denzlingen verleihen ihr eine besonders attraktive Wohnqualität. Ob zur Eigennutzung oder als Kapitalanlage durch Vermietung – diese Immobilie bietet vielseitige Perspektiven und stellt eine wertbeständige Investition in gefragter Wohnlage dar.
Denzlingen ist eine Nachbargemeinde von Freiburg mit einem alten, sehr schönen dörflichen Ortskern. Der Ort verfügt über Schulen, Kindergärten, Sportanlagen, Ärzte und Apotheken und hat damit eine sehr gute Infrastruktur. Denzlingen liegt rund 10 km nördlich von Freiburg im Landkreis Emmendingen. Sie erreichen Freiburg mit dem Auto oder öffentlichen Verkehrmitteln in kürzester Zeit. Ebenso kommen Sie schnell ins benachbarte Frankreich oder die Schweiz. Der Ort liegt inmitten der schönen südbadischen Weinbauregion mit malerischen Winzerdörfern, dem Kaiserstuhl, dem Markgräfler Land und dem gesamten Erholungsgebiet des Schwarzwalds. Denzlingen hat derzeit ca. 15.600 Einwohner.
Das Objekt liegt zentral im Ort, Geschäfte des täglichen Bedarfs, Ärzte, Apotheke und Bahnhof sind nur ca. 3 bis 5 Gehminuten entfernt. Schulen, Sportanlagen und Bürgerhaus erreicht man in ca. 15 Gehminuten.
Fußböden:
Parkett Ahorn, Fliesen
Wände und Decken:
Raufaser-Tapeten, gestrichen
Fenster und Terrassentür:
2-fach isolierverglast
Kunststoffrahmen weiß
außenlaufende Rolläden, manuell
1 Dachfenster mit elektrischem Rollo
Türen:
Holztüren Ahorn in Stahlzargen
Küche:
Fliesenboden + Arbeitsbereich gefliest
Einbauküchenzeile mit
Herd + Abzug, Spüle, Kühl-/ Gefrierkombi
Sanitär:
Fußböden mediterran gefliest
Wände raumhoch weiß gefliest
Badewanne + Waschplatz
separates WC mit Handwaschbecken
Fenster-Lüftung, Tageslicht
Heizung und Warmwasser:
Zentralheizung Gas
Heizkörper mit Thermostatventilen
Kamin-Anschluss im Wohnzimmer
Balkon:
Südausrichtung mit Kandelblick
elektr. Sonnenmarkise
Interessiert? Dann vereinbaren Sie am besten noch heute einen Besichtigungstermin mit uns, dem Team Tetik Immobilien! Wir freuen uns über Ihr Interesse an diesem Objekt. Sehr gerne zeigen wir Ihnen die Eigentumswohnung und beraten Sie in allen Fragen rund um den Erwerb. Wir kümmern uns auch um den Verkauf oder die Vermietung Ihrer bisher genutzten Immobilie.
Alle Angaben zum Objekt erfolgen nach Mitteilung unseres Auftragsgebers. Für die Richtigkeit und Vollständigkeit der Angaben, insbesondere der Flächen und Maße, wird keine Haftung übernommen. Bei Weitergabe an Dritte entsteht Provisionspflicht. Die Käuferprovision beträgt 3,57 % inkl. 19 % MwSt.
| Objekt ID: | TI-711-25 |
| Verfügbar ab: | sofort |
| Kaufpreis: | 379.000,00 EUR |
| Provision für Käufer: | 3,57 % |
| Zimmer: | 3 |
| Badezimmer: | 1 |
| Wohnfläche: | 83,97 m² |
| Etage: | 2 |
| Etagen: | 1 |
| Baujahr: | 1997 |
| Objektzustand: | gepflegt |
| Ausstattungskategorie: | Standard |
| Anzahl TG-Stellplätze: | 1 |
| Stellplätze: | 1 |
| Separate WCs: | 1 |
| Balkone: | 1 |
| Energieausweis-Jahrgang: | ab Mai 2014 |
| Energieausweis-Gebäudeart: | Wohngebäude |
| Heizungsart: | Zentralheizung |
| Befeuerungsart: | Gas |
| Baujahr lt. Energieausweis: | 1997 |
| Energieeffizienzklasse: | D |
| Wert des Endenergieverbrauchs: | 103,00 kWh/(m²*a) |
| Art des Energieausweises: | Verbrauch |
| Gültigkeit des Energieausweises: | 24.02.2028 |
































































